Work
Contact
Work
Contact
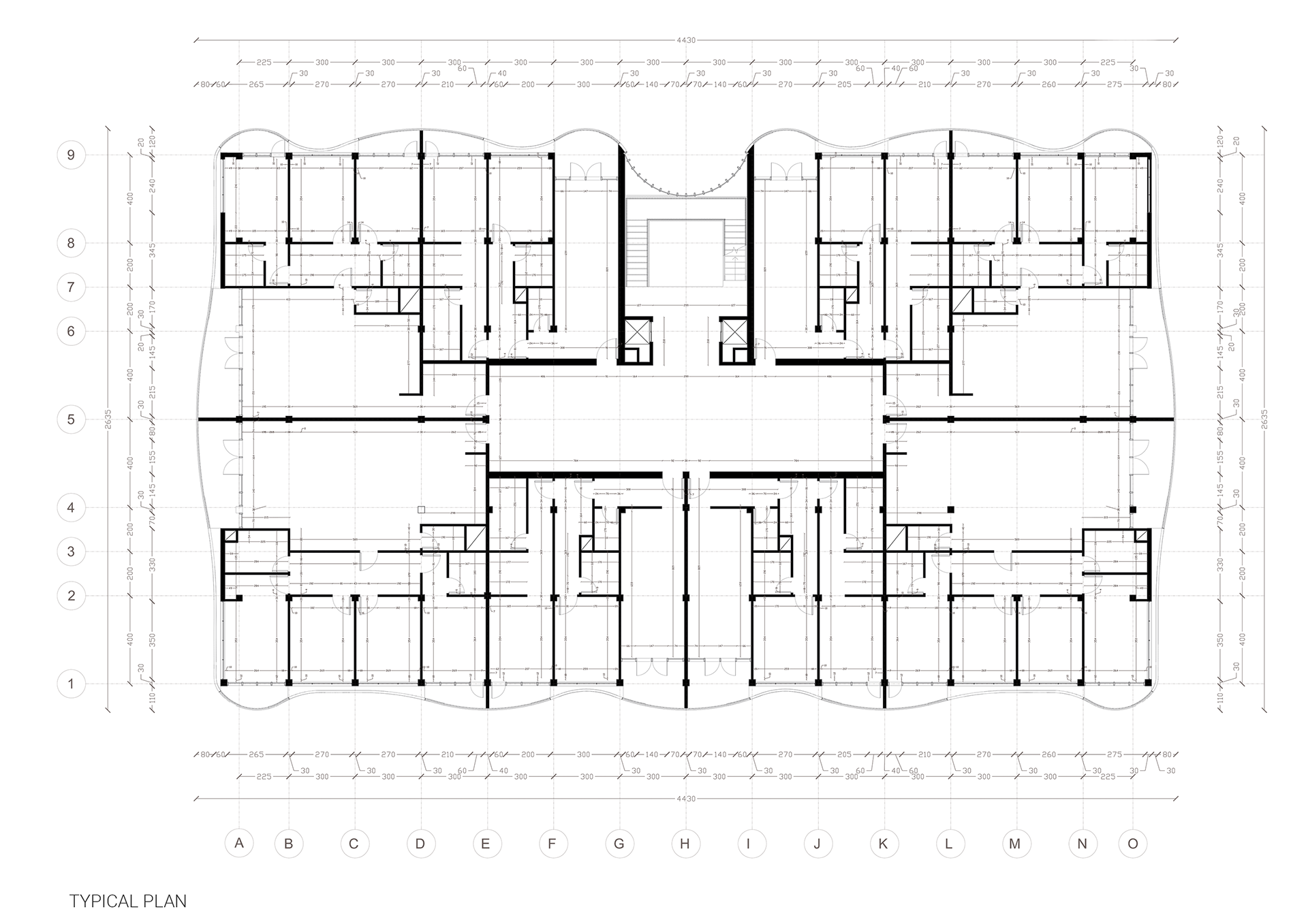
RESIDENTIAL BUILDING
Residential building at Damascus city - Syria
↑
Back to Top